Julianów - 4 pokoje w spokojnej okolicy

mazowieckie, piaseczyński, Piaseczno, Julianów, ul. Urbanistów

813 672 zł

10 800 zł/m2

0% PROWIZJI

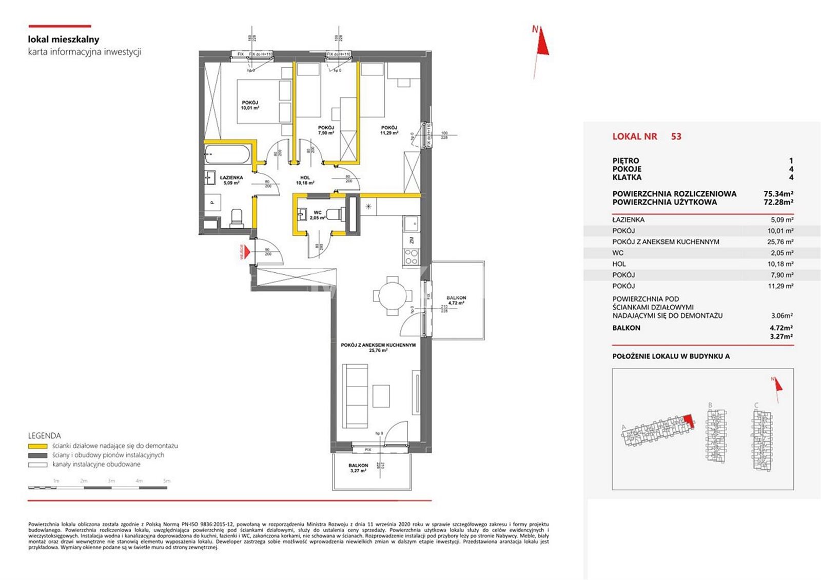
Mieszkanie na sprzedaż - 75,34 m2, 4 pokoje

Powierzchnia:
75,34 m2
Liczba pokoi:
4 pokoje
Piętro:
1 / 3
Czynsz:
b.d.
Typ mieszkania:
Mieszkanie
Stan wykończenia:
Deweloperski
Ogrzewanie:
Inne
Rynek:
pierwotny
Dostępne od:
30-12-2025
Powierzchnie dodatkowe:
  • balkon klasyczny
  • komórka
Udogodnienia:
  • winda
Parking:
  • podziemny 1x 45 000 zł
Numer oferty:
62975/MS/MAX

Pomieszczenia

Wysokość:
b.d.
Powierzchnia salonu:
25,76 m2
Rodzaj kuchni:
Aneks
Liczba łazienek:
1
Liczba toalet:
1
Garderoba:
Nie

Budynek

Rodzaj budynku:
Apartamentowiec
Rok budowy:
2025
Stan budynku:
W budowie
Materiał konstrukcyjny:
Mieszany
Bezpieczeństwo:
  • domofon
  • monitoring
Udogodnienia:

Opis

Zapraszamy do zapoznania się z mieszkaniem na nowym osiedlu położonym w malowniczym otoczeniu.
Lokalizacja osiedla zapewnia dobrą komunikację z Piasecznem jak też z samą Warszawą. Daje spokój i odskocznie od wielkomiejskiego zgiełku.
W okolicy są przystanki autobusowe, przedszkole, szkoła oraz sklepy. (w budowie nowa szkoła 500m od inwestycji)
Dzięki ścieżkom rowerowym można dojechać do Lasu Kabackiego (8min jazdy), Park Zdrojowy w Konstancinie-Jeziornej (16min jazdy) czy Parku Kultury w Powsinie (16min jazdy)
Niedaleko znajdują się:
- Centrum Sportów Lavo (1km)
- Centrum handlowe Auchan (3,5km)
- Centrum handlowe San Park (3,5km)
- Designer Outlet Warszawa (2,5km)
- wjazd na S7 (7,1km)
Opis mieszkania:
- 4 ustawne pokoje
- Salon z aneksem kuchennym (25,76mkw)
- Łazienka oraz osobna toaleta
- dwa balkony (4,72mknw & 3,27mkw)
Możliwość dokupienia miejsca postojowego w garażu podziemnym oraz komórki w budynku B i C (cena komórki to 7000pln)

PROMOCJA!
DO ODWOŁANIA MIEJSCE PARKINGOWE ZA 1000pln.

W ofercie też inne lokale w tej inwestycji.

Zapraszamy do kontaktu!

         

Maxon Nieruchomości jest zewnętrznym biurem sprzedaży dewelopera. Ceny oferowanych nieruchomości są identyczne z cenami jakie oferuje developer. Nasi agenci pomogą wybrać ofertę dopasowaną do Państwa potrzeb i przeprowadzą przez cały proces zakupu nieruchomości. Nie ponosisz żadnych kosztów, możesz tylko zyskać!

Lokalizacja

Lokalizacja nieruchomości na mapie może być przybliżona

Plan

Zapraszamy do kontaktu

Ewa Gorycka

Ekspert ds. Nieruchomości

Zadzwoń:

Zainteresowała Cię nasza oferta lub szukasz podobnej nieruchomości? Zapraszamy do kontaktu!



Oferty w pobliżu

0%
Julianów - 3 pokoje w spokojnej okolicy
Julianów , ul. Urbanistów
804 920 zł

10 993 zł/m2

73 m2

3 pokoje

0%
Julianów - 3 pokoje w spokojnej okolicy
Julianów , ul. Urbanistów
748 143 zł

12 100 zł/m2

62 m2

3 pokoje

0%
2 pokoje Julianów !
Julianów , Urbanistów
552 132 zł

14 700 zł/m2

38 m2

2 pokoje

Tylko u nas
1 049 000 zł

16 685 zł/m2

63 m2

3 pokoje

Tylko u nas
Gotowe mieszkanie w Józefosławiu !
Józefosław , ul. Radnych
635 000 zł

14 987 zł/m2

42 m2

2 pokoje

1/2