Dwupoziomowy LOFT pow.130mkw 6 pokoi Ogród Taras

mazowieckie, wołomiński, Radzymin, ul. Polskiej Organizacji Wojskowej

699 000 zł

5 365 zł/m2

TYLKO U NAS 0% PROWIZJI

Dom na sprzedaż - 130,28 m2, 6 pokoi

Powierzchnia:
130,28 m2
Liczba pokoi:
6 pokoi
Rodzaj zabudowy:
Segment
Stan wykończenia:
Stan deweloperski
Rynek:
pierwotny
Udogodnienia:
Numer oferty:
12808/DS/MAX

Pomieszczenia

Powierzchnia salonu:
22,00 m2
Rodzaj kuchni:
Aneks
Powierzchnia kuchni:
8,00 m2
Liczba łazienek:
1
Liczba toalet:
0
Garderoba:
Tak
Komórka:
Nie

Budynek

Rok budowy:
2025
Liczba kondygnacji:
1
Materiał konstrukcyjny:
Pustak
Ogrzewanie:
pompa ciepła
Dach:
Blachodachówka
Rodzaj okien:
pcv
Wpis do rejestru zabytków:
Nie
Bezpieczeństwo:
  • domofon
  • monitoring
Powierzchnie dodatkowe:
  • taras 8,00 m2

Działka i otoczenie

Powierzchnia działki:
40,00 m2
Kształt działki:
Ogrodzenie:
Mieszane
Droga dojazdowa:
Asfaltowa
Media:
  • prąd: tak
  • gaz: nie
  • woda: Miejska
  • kanalizacja: Miejska

Opis

Wyjątkowa Oferta !! NOWOŚĆ !! Ekskluzywne Klimatyczne Apartamenty Gardenia Nietuzinkowy Design / LOFT 6 pokojowy dwupoziomowy / powierzchnia 130mkw zapisane w KW / I i II kondygnacji jest użytkowa / EKO - pompa ciepła 

II kondygnacja bez skosów z oknami pełnowymiarowymi i tarasami oraz narożne z ogrodami/ Bezczynszowe / blisko SKM / 
Okazja inwestycyjna / mogą powstać dwa oddzielne mieszkania / 
Prezentowany dwupoziomowy LOFT położony jest na I i II piętrze posiada 130mkw powierzchni oraz Ogród ok 35mkw. Jest to 6 pokojowy apartament z dwoma łazienkami istnieje możliwość adaptacji na dwa oddzielne mieszkania / na II piętrze.  II Kondygnacja nie posiada skosów. 

Do Apartamentu przynależy OGRÓD o pow. ok 35mkw położony przed budynkiem / jest możliwość wykorzystania powierzchni na dodatkowe dwa miejsca postojowe.

LOFT posiada oddzielne wejście nie łączone z mieszkaniem na parterze (jedyny sąsiad).

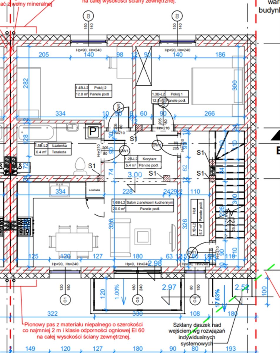
Schemat pomieszczeń:
I kondygnacja

  • Salon z jadalnią i otwartą kuchnią (21,08m)
  • Pokój 1 (12,12m)
  • Pokój 2  (9,53m)
  • Pokój 3 (8,34)
  • Łazienka (4,22m)
  • Hol (5,12m)
  • Wiatrołap (2,27m)
  • Ogród (100m)
  • Taras

II Kondygnacja - powierzchnia bez skosów 

  • Pokój rekreacyjny (26,75m)
  • Pokój (12,82m)
  • Pokój (12,48m)
  • Łazienka (6,44m)
  • Hol (6,84m)

Apartament  posiada ekspozycję dwustronną, przez co jest doskonale doświetlony.

W cenie:

  • zamontowana pompa ciepła - każdy Apartament posiada własną pompę ciepła
  • ogrzewanie podłogowe w całym domu I i II piętro
  • brak skosów na II piętrze
  • na II piętrze zamontowane okna pełnowymiarowe (nie dachowe)
  • własny ogródek przydzielony do lokalu / ogródki ogrodzone
  • osiedle zamknięte ogrodzone
  • teren wyłożony kostką
  • domofon
  • przyłącza alarmowe, antenowe, TV i internetowe
  • pięknie zagospodarowana infrastruktura osiedla
  • jedno miejsce postojowe numerowane oraz dodatkowe miejsca postojowe na terenie osiedla

Media: prąd, siła (indukcja), wodociąg miejski, kanalizacja, ogrzewanie i ciepła woda - pompa ciepła 

Coś o zabudowie...

Nowoczesne Designerskie Kameralne Osiedle 4 Apartamentów bezczynszowych z Ogrodami o podwyższonym standardzie. Wyróżniają się pięknym projektem, jakością wykonania. Jest to indywidualny projekt wykonany przez wiodącą pracownie projektową.

Nowoczesne osiedle, przepiękny Design . Apartamenty posiadają oddzielne wejścia / własna klatka schodowa.

Osiedle: kameralna zabudowa, indywidualny projekt, skupiający się na detalach tworzący spójny koncept osiedla. Projekt wykonany na indywidualne zamówienie. Domy cechuje rzetelność wykonania, doskonała jakość oraz zróżnicowana powierzchnia.

Powierzchnie Apartamentów od 63,13mkw do 130,28mkw. W ofercie lokale:
Apartamenty o pow. 63,13mkw położone na parterze z Ogrodami o pow. 100mkw i 170mkw
Lofty dwupoziomowe o pow. 130,28mkw położone na 1 piętrze z Ogrodami o pow. 35mkw. 

Lokalizacja:
Radzymin ul. Polskiej Organizacji Wojskowej / blisko SKM 
Dzięki swojemu unikalnemu położeniu gwarantuje azyl od miejskiego zgiełku, znajdując się jednocześnie w miejscu bardzo dobrze skomunikowanym z pełną infrastrukturą.
Bezpośrednie dojcie piechota do SKM Radzymin
Dojazd do Centrum Radzymina w kilka minut
Dojazd do Warszawy ok 20 minut
Dojazd do Metra Targówek bezpośrednim autobusem z Radzymina  (linia 738)
W okolicy pełna infrastruktura: szkoła podstawowa, przedszkole, żłobki.

ATUT:

  • BEZCZYNSZOWE APARTAMENTY
  • miejsce postojowe  numerowane oraz dodatkowe miejsca postojowe na osiedlu 
  • kupujesz dom bez dodatkowych opłat (brak prowizji, kosztów ukrytych)
  • oferta bezpośrednio od dewelopera
  • pełna obsługa procesu finansowania od pomocy w uzyskaniu korzystnej oferty kredytowej przez formalności do uruchomienia kredytu

CENNIK: (dostępnych lokali )
· Apartament parter (63,13mkw) z ogrodem 100m (A1) – Sprzedany
· Apartament parter (63,13mkw) z ogrodem 197m (B1) – 549.000 PLN
· Dwupoziomowy Loft (130,28mkw) z ogrodem 40m i 35m (A2 Rezerwacja B2) - 699.000 PLN

Kupujący zwolniony z 2% podatku PCC. / zakup bezpośrednio od dewelopera / Zapraszam Dzwoń 7 dni w tygodniu 9-21
*wizualizacje maja charakter poglądowy poglądowy nie stanowią oferty handlowej w rozumieniu art.66 par.1 k.c. Ostateczny wygląd może odbiegać od przedstawionego
* treść zawarta w ogłoszeniu jest informacją o inwestycji w przygotowaniu, nie stanowi oferty handlowej w rozumieniu art.66 k.c. 

Maxon Nieruchomości jest zewnętrznym biurem sprzedaży dewelopera. Ceny oferowanych nieruchomości są identyczne z cenami jakie oferuje developer. Nasi agenci pomogą wybrać ofertę dopasowaną do Państwa potrzeb i przeprowadzą przez cały proces zakupu nieruchomości. Nie ponosisz żadnych kosztów, możesz tylko zyskać!

Lokalizacja

Lokalizacja nieruchomości na mapie może być przybliżona

Plan

Zapraszamy do kontaktu

Beata Palaszek

Ekspert ds. Nieruchomości

Zadzwoń:

Zainteresowała Cię nasza oferta lub szukasz podobnej nieruchomości? Zapraszamy do kontaktu!



Oferty w pobliżu

Tylko u nas
0%
Dwupoziomowy LOFT pow.130mkw 6 pokoi Ogród Taras
Radzymin , ul. Polskiej Organizacji Wojskowej
699 000 zł

5 365 zł/m2

130 m2

6 pokoi

Tylko u nas
0%
Ekskluzywne Apartamenty Gardenia 4 pok. Ogród 197m
Radzymin , ul. Polskiej Organizacji Wojskowej
549 000 zł

8 696 zł/m2

63 m2

4 pokoje

0%
1 595 000 zł

5 758 zł/m2

277 m2

7 pokoi

0%
580 000 zł

9 346 zł/m2

62 m2

4 pokoje

0%
620 000 zł

5 591 zł/m2

111 m2

4 pokoje

1/11