Małe biuro w atrakcyjnej cenie

Warszawa, Ochota, al. Aleje Jerozolimskie

2 751 eur

16 eur/m2

0% PROWIZJI

Powierzchnia biurowa na wynajem

Podstawowe

Powierzchnia
173,00 m2
Piętro
10
Numer oferty
24976/PBW/MAX

Warunki handlowe

Koszty eksploatacyjne m2
32,00
Czynsz m2
15,90 EUR
Min. okres najmu (lata)
3
Parking podziemny - miejsce
140 EUR

Standard

Klimatyzacja
Wentylacja wymuszona
Otwierane okna
Podwieszane sufity
Podnoszone podłogi
Światłowód
Okablowanie komputer.
Okablowanie elektryczne
Okablowanie telefoniczne

Bezpieczeństwo

Recepcja
Monitoring
Czujniki dymu
Kontrola dostępu
Tryskacze
Alarm
Ochrona

Informacje o budynku

Rok budowy
2008
Pow. biurowa netto
19 500 m2
Pow. typowego piętra
1 380 m2
Współ. pow. wspól. (%)
6,00 %
Kondygnacje naziemne
15
Kondygnacje podziemne
3
Winda
Dostępne w budynku
bankomat, restauracja
Współ. miejsc parking.
60,00

Budynek

Rodzaj budynku
Biurowiec

Opis

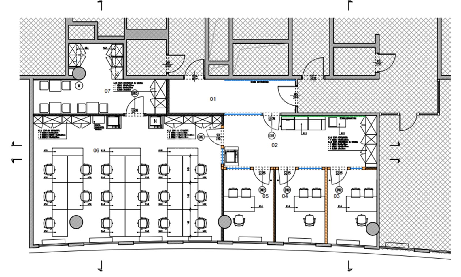
Do wynajęcia nieduża powierzchnia położona na 10 piętrze w nowoczesnym biurowcu Equator I.

Obecnie powierzchnia składa się z 3 gabinetów, przestrzeni typu open space, kuchni oraz recepcji - układ zgodny z załączonym planem.

Biuro może być dostosowane do potrzeb przyszłego najemcy.

Budynek

Equator I to nowoczesny budynek biurowy klasy A położony przy Al. Jerozolimskich 94, w pobliżu Pl. Zawiszy. Biurowiec posiada certyfikat BREEAM na poziomie bardzo dobrym. Biurowiec oferuje ponad 17 tys. mkw. powierzchni na 15 kondygnacjach, a powierzchnia typowego piętra wynosi 1400 mkw.
Klimatyzacja, otwierane okna, podwieszane sufity, podniesiona podłoga, czujniki dymu, ochrona, ogólna recepcja. W budynku funkcjonuje kantyna i bankomat.

Lokalizacja

Lokalizacja nieruchomości na mapie może być przybliżona

Zapraszamy do kontaktu

Izabela Pękacz-Onufrzak

Doradca | Dział Powierzchni Biurowych

Zadzwoń:

Zainteresowała Cię nasza oferta lub szukasz podobnej nieruchomości? Zapraszamy do kontaktu!



Oferty w pobliżu

0%
Biuro Al. Jerozolimskie (bliska Ochota)
Warszawa, Ochota , al. Aleje Jerozolimskie
52 594 zł

70 zł/m2

750 m2

0%
Biuro przy Placu Zawiszy
Warszawa, Ochota , al. Aleje Jerozolimskie
22 886 zł

64 zł/m2

359 m2

0%
Samodzielne piętro w biurowcu.
Warszawa, Ochota , al. Aleje Jerozolimskie
118 575 zł

64 zł/m2

1 860 m2

0%
Biuro blisko Placu Zawiszy
Warszawa, Ochota , al. Aleje Jerozolimskie
38 340 zł

64 zł/m2

600 m2

0%
parter w biurowcu
Warszawa, Ochota , Al. Jerozolimskie
34 827 zł

78 zł/m2

444 m2

1/4